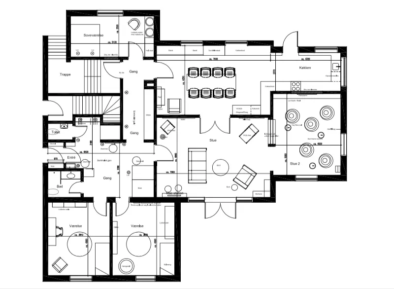
I dag danner de store fællesrum rammerne for den moderne boligform, og i nybyggede boliger er køkkenalrummet og de store fællesrum allerede implementeret i boligens plantegning fra starten af. I ældre boliger kan ønsket om det store fællesrum dog nogen gange vise sig at være en udfordring, der kræver drastiske ændringer. Det var netop tilfældet for familien i huset herunder. Familien havde et ønske om et større og mere åbent køkken og var på vej i en helt anden retning, men efter en grundig gennemgang af huset og god dialog med Indret.nu’s indretningsarkitekt Marina Lykkesteen blev familiens ønske om et stort og åbent køkkenalrum realiseret ved at rykke køkkenet ud i den gamle vinterhave. På den måde kunne lyset fra de store vinduer nydes og det store værelse i forlængelse af vinterhaven kunne bruges som alrummet, der i dag samler hele familien.
Hvis du har svært ved at se nye muligheder i din bolig, men går med en drøm om at ændre på hjemmets plantegning og måske skabe en mere åben og fællesorienteret indretning, så er der altid hjælp at hente hos Indret.nu. At flytte et rum behøver nemlig ikke at være en uoverskuelig eller bekostelig affære.





